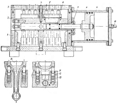
При деформации отверстия нижней головки шатуна более допустимого размера плоскости разъёма шатуна и крышки фрезеруют и отверстие растачивают до номинального размера. Для фрезерования крышек и шатунов используют приспособление [рис. 1] с гидравлическим зажимным устройством, которое позволяет быстро и надёжно закрепить детали.

Рис. 1. Приспособление для фрезерования плоскостей разъёма шатунов и крышек.
1) – Каркас;
3) – Плита;
4) – Винт;
5) – Масляный резервуар;
6) – Поршень;
7) – Втулка;
8) – Поршень;
9) – Пневматический цилиндр;
10) – Штуцер;
11) – Пружина;
12) – Плунжер;
13) – Втулка;
14) – Сектор.